- Woonoppervlakte
- Circa 146 m²
- Perceeloppervlakte
- Circa 158 m²
- Bouwjaar
- Gebouwd in 2000
- Aantal kamers
- 6 kamers (5 slaapkamers)
Bent u op zoek naar een ruime en goed onderhouden gezinswoning met uitstekende voorzieningen en een rustige ligging omgeven door het prachtige Park Meerland waar je heerlijk kunt wandelen, dan is deze woning aan het Zandstrand 26 in Eindhoven misschien precies wat u zoekt!
Deze tussenwoning is gebouwd in 2000 en biedt een royale 146 m² woonoppervlak verdeling over drie woonlagen. Met een privé tuin, meerdere opslagmogelijkheden en een hoog onderhoudsniveau zowel binnen als buiten, is deze woning ideaal voor gezinnen, starters of expats.
Indeling
Voortuin:
Ruime voortuin van ca. 24 m² met toegang tot de voordeur van de woning.
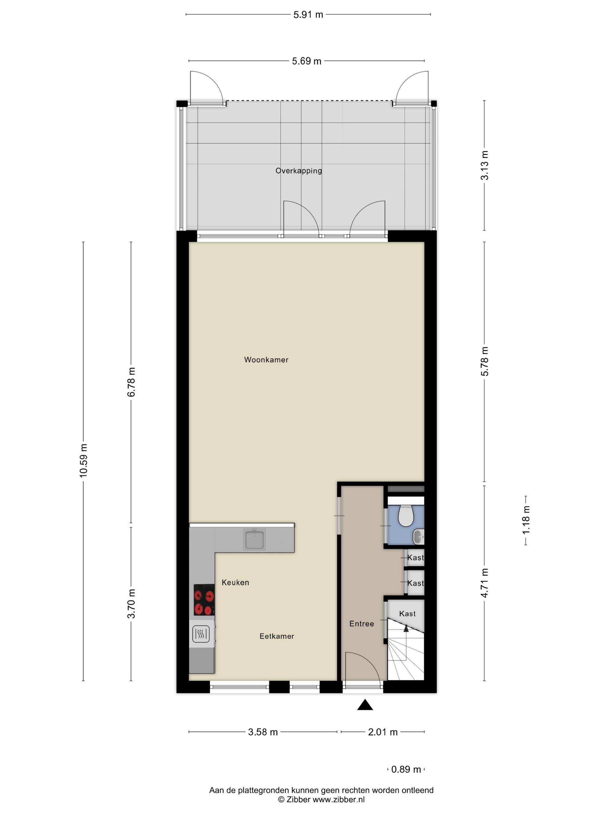
Begane grond:
Entree in ruime hal met open trapopgang naar de verdiepingen, separaat toilet en doorgang naar de woonkamer en keuken. De hal heeft een nieuwe lichtkoepel gekregen in 2024. Ruime woonkamer (ca. 36 m²) met leefkeuken aan de voorzijde van de woning en de toegang tot de serre aan de achterzijde. De moderne open keuken (ca. 14 m²) is in 2024 nieuw geplaatst en voorzien van hoogwaardige inbouwapparatuur met onder andere een BORA inductie kookplaat met geïntegreerde afzuiging en een werkblad met spoelbak en mengkraan.
De eiken houten vloer in de woonkamer is in 2024 opnieuw geschuurd en behandeld.
De serre/overkapping van ca. 18 m² aan de achterzijde van de woning kan volledig worden afgesloten. Hij is het hele jaar te gebruiken en te verwarmen met een losstaande kachel. De dakplaten van de overkapping zijn in 2023 vernieuwd.
Eerste verdieping:
Op deze verdieping bevinden zich 2 ruime slaapkamers
- Slaapkamer 1 is ca. 13 m²
- Slaapkamer 2 is ca 16,5 m²
De volledig betegelde badkamer van ca. 8 m² is voorzien van dubbele wastafel, douchecabine, ligbad, tweede toilet, extra bergruimte, design radiator en stopcontact.
Tweede verdieping:
De bovenste verdieping telt nog eens 3 slaapkamers waarvan de kleinste nu in gebruik is als wasruimte en berging
- Slaapkamer 3 is ca. 13 m²
- Slaapkamer 4 is ca. 16,5 m²
- Slaapkamer 5 van ca. 8 m²
Buitenruimte:
De woning beschikt over zowel een voortuin alsmede een praktisch aangelegde achtertuin met achterom. De tuin is onderhoudsvrij en beschikt over een houten schuur van ca. 10 m².
Locatie Hoogtepunten
Gelegen in de wijk Meerhoven (Zandrijk), een rustige en groene woonomgeving binnen de gemeente Eindhoven, voorzien van internationale scholen, kinderopvang, sportvoorzieningen, horecagelegenheden en gezondheidscentrum
Op loopafstand van enkele supermarkten en andere dagelijkse voorzieningen;
Op fietsafstand van het centrum van Eindhoven en station Eindhoven Centraal, waardoor woon-werkverkeer eenvoudig is;
De bushalte is op loopafstand en zorgt voor een zeer goede verbinding naar het centrum van Eindhoven;
Snel toegang tot hoofdwegen, met de dichtstbijzijnde snelwegen, A2 en A67 op slechts 5 minuten rijden met de auto;
Details:
Energielabel A;
Keuken nieuw geplaatst in 2024;
De tweede verdieping is voorzien van een airconditioning
Aan de voorzijde zijn de slaapkamers op de eerste en tweede verdieping voorzien van elektrisch bedienbare rolluiken, de begane grond is voorzien van elektrisch bedienbare screens, de screendoeken zijn recent vernieuwd
Woonoppervlak van ca. 146 m²;
Beschikbaarheid in overleg.
Geïnteresseerd?
Neem contact met ons op om een bezichtiging in te plannen — we laten u graag de woning zien!
Overdracht
- Vraagprijs
- € 649.000 k.k.
- Status
- In prijs verlaagd
- Aanvaarding
- In overleg
Bouw
- Object type
- Eengezinswoning, tussenwoning
- Soort bouw
- Bestaande bouw
- Bouwjaar
- 2000
Oppervlakte en inhoud
- Woonoppervlakte
- 146 m²
- Perceeloppervlakte
- 158 m²
- Inhoud
- 540 m³
- Externe bergruimte
- 10 m²
- Gebouwgeb. buitenruimte
- 18 m²
Indeling
- Aantal kamers
- 6 kamers (5 slaapkamers)
- Aantal badkamers
- 1 badkamer en 1 apart toilet
- Badkamervoorzieningen
- Ligbad, dubbele wastafel, douche, hangend toilet, wastafelmeubel
- Voorzieningen
- Mechanische ventilatie
Energie
- Energielabel
- A
- Energielabel registratie
- 29-12-2010
- Verwarming
- Stadsverwarming
Buitenruimte
- Ligging
- Aan rustige weg, aan water, in woonwijk, open ligging, vrij uitzicht
- Tuin
- Achtertuin, voortuin
- Afmetingen achtertuin
- 54 m² (9 meter diep en 6 meter breed)
- ligging tuin
- Gelegen op het noordwesten en bereikbaar via achterom
Parkeergelegenheid
- Soort parkeergelegenheid
- Openbaar parkeren
Energieverbruik in Eindhoven
Energielabel deze woning
Energielabel A
Publicatie energielabel: 29-12-2010
Stroomverbruik per jaar
(Gemiddelde tussenwoning in Eindhoven)
Gasverbruik per jaar
(Gemiddelde tussenwoning in Eindhoven)
* Cijfers zijn afkomstig van het CBS en bedoeld als indicatie en kunnen verschillen voor deze woning
Indicatie hypotheeklasten
Eigen inleg:
Spaargeld / overwaarde
Rente:
Laagste 10-jaars rente
Laagste 10-jaars rente
2,75% - Centraal Beheer Groen... - NHG
3,04% - Argenta Groen Hypothee... - 80%
Laagste 20-jaars rente
3,18% - Argenta Groen Hypothee... - NHG
3,39% - Argenta Groen Hypothee... - 80%
Laagste 30-jaars rente
3,35% - Argenta Groen Hypothee... - NHG
3,56% - Argenta Groen Hypothee... - 80%
Hypotheek:
Bruto maandlasten: € 0 p/m
Netto maandlasten: € 0 p/m
Hoe berekenen we dit?
Het rentepercentage is gebaseerd op de laagste 10 jaars vaste rente voor één hypotheekdeel. De vermelde rente (3.04% zonder NHG) is gecontroleerd op 08-11-2025. Deze berekening is gebaseerd op een annuïteitenhypotheek die volledig wordt afgelost, waarbij de maandlasten gedurende de gehele looptijd gelijk blijven. De werkelijke rente en netto maandlasten kunnen variëren, afhankelijk van uw persoonlijke situatie en de hypotheekverstrekker. Raadpleeg een financieel adviseur voor een nauwkeurige berekening en advies. Aan deze berekening kunnen geen rechten worden ontleend; het dient enkel als indicatie.
Documentatie
Kadastrale kaart
Leefomgeving
BAG uittreksel
Brochure
Plattegronden PDF
Bezichtiging
Bod uitbrengen
Waardebepaling
Zoekopdracht
Alles downloaden
Zonnegrenzen bekijken
Op de kaart
Inwoners in Eindhoven
Cijfers voor postcodegebied 5658
- Totaal aantal inwoners
- 11990 inwoners
- Mannen
- 51%
- Vrouwen
- 49%
Inwoners in Eindhoven
Cijfers voor postcodegebied 5658
- tot 15 jaar
- 24%
- 15 tot 25 jaar
- 9%
- 25 tot 35 jaar
- 34%
- 45 tot 65 jaar
- 23%
- 65 en ouder
- 9%
Huishoudens in Eindhoven
Cijfers voor postcodegebied 5658
- Eenpersoons zonder kinderen
- 24%
- Meerpersoons zonder kinderen
- 28%
- Huishoudens zonder kinderen
- 52%
Huishoudens in Eindhoven
Cijfers voor postcodegebied 5658
- Huishoudens met één kind
- 5%
- Huishoudens met meerdere kinderen
- 42%
- Huishoudens met kinderen
- 47%
Woningen in Eindhoven
Cijfers voor postcodegebied 5658
- Woningen voor 1945
- 1%
- Woningen tussen 1945 en 1965
- 1%
- Woningen tussen 1965 en 1975
- 1%
- Woningen tussen 1975 en 1985
- 1%
- Woningen tussen 1985 en 1995
- 1%
Woningen in Eindhoven
Cijfers voor postcodegebied 5658
- Woningen tussen 1995 en 2005
- 46%
- Woningen tussen 2005 en 2015
- 40%
- Woningen na 2015
- 14%
- Huurwoningen
- 20%
- Koopwoningen
- 70%
Overige in Eindhoven
Cijfers voor postcodegebied 5658
- Gemiddelde WOZ waarde
- € 359.000,-
- Personen onder de 65 met uitkering
- 4%
Overige in Eindhoven
Cijfers voor postcodegebied 5658
- Adressen per km²
- 1238
- Stedelijkheid (schaal 1 op 5)
- 60%
Indien u vragen heeft of u wilt een bezichtiging inplannen, dan kunt u gebruik maken van het formulier hiernaast. Er zal daarna op korte termijn contact met u worden opgenomen.
Leenderweg 36 A
5615AA, Eindhoven
(+31) 40 243 00 30 info@lightcityhousing.nl www.lightcityhousing.nlContact opnemen
Welkom bij Lightcity Housing
Lightcity Housing is een betrokken en deskundig makelaarskantoor in de regio Groot Eindhoven. Ons team bestaat uit ervaren makelaars en kantoormedewerkers die de lokale vastgoedmarkt door en door kennen. Of het nu gaat om huren, verhuren, kopen of verkopen — wij staan voor u klaar met persoonlijke begeleiding en een vooruitdenkende aanpak.
Net als Eindhoven zijn wij innovatief, eigentijds en constant in beweging. Wij geloven in technologische vooruitgang en passen dit dagelijks toe in onze werkwijze. Zo combineren we data en digitalisering met menselijk contact en maatwerk. Uw wensen en situatie vormen altijd het startpunt van onze dienstverlening.
Of u al jaren in Eindhoven woont of als expat tijdelijk neerstrijkt in deze bruisende regio: bij Lightcity Housing bent u in goede handen. We helpen u graag bij het vinden van een passende huurwoning, of juist bij het snel en zorgvuldig verhuren of verkopen van uw huidige woning.
Benieuwd wat wij voor u kunnen betekenen? Neem gerust contact met ons op voor een vrijblijvend gesprek. We komen graag bij u langs om de mogelijkheden te bespreken.
Nieuwste reviews
-
Trudo Dak
2 weken geleden contact opgenomen met khalid voor een appartement in veldhoven. Hij ondernam meteen actie voor mij en had een appartement wa...
-
Spencer de Wagt
Na bezichtiging snel contract kunnen tekenen. Ook bij problemen zijn ze goed bereikbaar en ben snel geholpen
-
ΑΝΤΩΝΗΣ ΑΝΑΓΝΩΣΤΟΥ
We hebben een fantastische ervaring gehad met Lightcity Agency en kunnen hun diensten van harte aanbevelen. Van begin tot eind werd alles pr...